Réalisations

Appartement (NEUILLY SUR SEINE)

 Sommaire

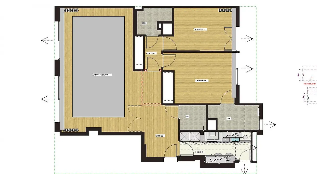
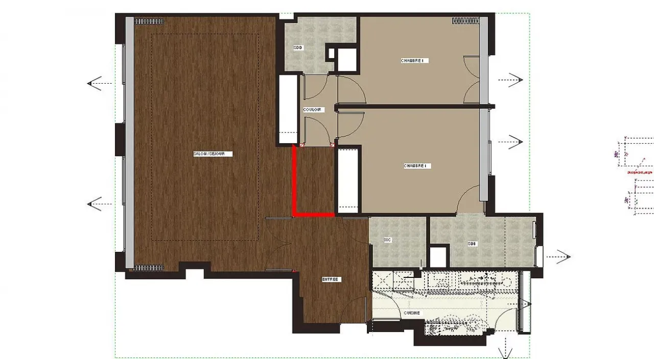
Surface :

83 m²

Temps de réalisation :

3 ½ mois

Budget :

115 000 €

Descriptif :



- Éliminer la moquette des chambres puis changer le parquet pour unifier l'ensemble.
- Refaire les pièces d'eau et la cuisine.
- Installer une climatisation réversible et changer tous les radiateurs.
- Créer un faux plafond pour le séjour, couloir et salles de bains.
- Éliminer la porte d'accès au séjour pour agrandir l'entrée et l'intégrer au séjour.
- Refaire les balcons (coté rue et côté chambre).
- Rénovation de tous les dressings.
- Peinture générale.

Contactez-moi

+33 (0)6 02 30 24 13
17 Cité Jacques Blumenthal 78160 Marly-le-Roi

Les champs marqués d'un * sont obligatoires