Réalisations

Appartement (SAINT-CLOUD)

 Sommaire

Surface :

123 m²

Temps de réalisation :

5 ½ mois

Budget :

150 000 €

Mission :



Rénovation complète de l'appartement avec accompagnement pour le choix des matériaux et décoration.

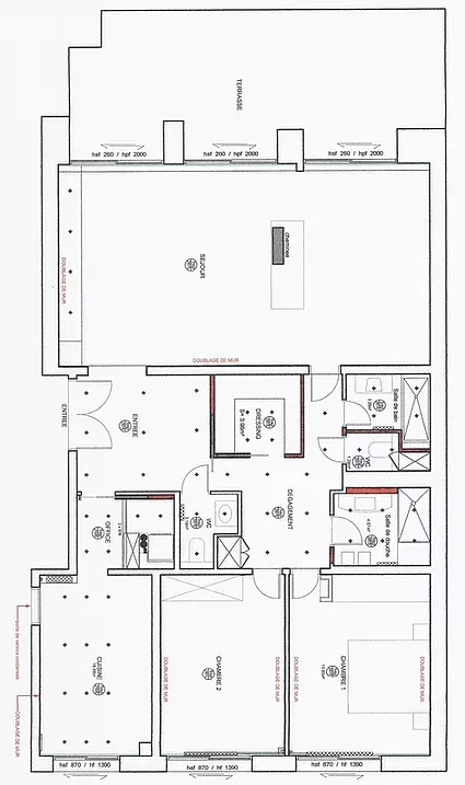
Descriptif :



- Tout le sol de l'appartement a été changé.

- La cloison de séparation dans le séjour a été démolie.

- Le mur du fond du séjour a été recouvert par des plaques de parement et un éclairage au sol a été créé pour mettre ce mur en valeur.

- Le meuble TV du séjour a été dessiné et fait sur mesure pour cet espace ainsi que le meuble cheminée.

- Le placard de l'entrée a été transformé en toilettes.

- Le dressing agrandi et son accès modifié. La porte avant ouvrante a été remplacée par une coulissante.

- Création d'un faux plafond pour: l'entrée, toilettes, salles de douche et salle de bains, dégagement, cuisine, office puis un faux plafond partiel sur le meuble TV du séjour.

- Le WC, avant dans les salles d'eau a été séparé dans une pièce à part.

- L'office a  été modifié pour créer un espace buanderie, séparé et caché par des portes coulissantes du sol au plafond.

- La cuisine complètement refaite. La porte avant ouvrante a été remplacé par une coulissante en verre pour laisser passer la lumière.

- Toutes les fenêtres, portes-fenêtres, stores ont été refaites.

- La porte de sécurité de l'entrée a été remplacée.

- La porte avant ouvrante du dégagement a été remplacée par une coulissante.

- La terrasse complètement refaite: carrelage, gazon, clôture et spots à chaque porte- fenêtre.

- L'électricité (avant en goulottes apparentes) a été complètement refaite et encastrée.

- Peinture générale.

Contactez-moi

+33 (0)6 02 30 24 13
17 Cité Jacques Blumenthal 78160 Marly-le-Roi

Les champs marqués d'un * sont obligatoires