+33 (0)6 02 30 24 13
ok@dekointerieur.com
Présentation
Pourquoi faire appel à un/e architecte d’intérieur ?
Comment se déroule le chantier ?
Trouver un architecte d’intérieur en Ile-de-France
Réalisations
Total
Partiel
Etude
Contact
Réalisations
Cuisine ouverte (LES CLAYES SOUILLY)
Sommaire
Réalisation
1/13
Réalisation
Cuisine en laque brillante blanche. Plan de travail en stratifié coloris bois en 2 épaisseurs. Hotte sur plan de travail.
2/13
Hotte ouverte
3/13
Côté évier avec banc
4/13
Côté évier avec banc
5/13
Réalisation
6/13
Vue de l’îlot depuis l'entrée
7/13
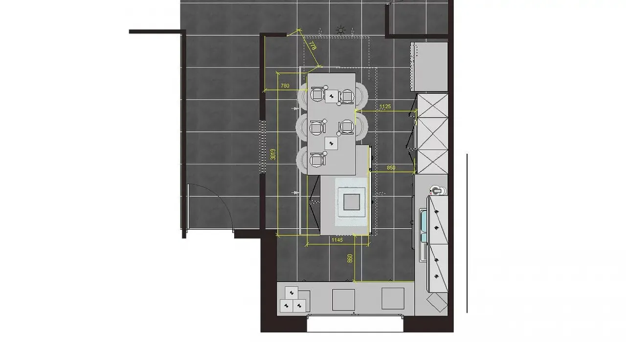
Plan de la cuisine
8/13
Perspective du projet
9/13
Elévation Frigo / armoires et évier
10/13
Élévation banc sous fenêtre
11/13
Elévation îlot coté rangement
12/13
Elévation îlot coté cuisson
13/13
Surface :
Temps de réalisation :
Budget :
Descriptif :
Contactez-moi
+33 (0)6 02 30 24 13
ok@dekointerieur.com
17 Cité Jacques Blumenthal 78160 Marly-le-Roi
Instagram
LinkedIn
Facebook
J'accepte la politique de confidentialité*
Les champs marqués d'un * sont obligatoires