Réalisations

LA GARENNE COLOMBES

 Sommaire

Surface :

Temps de réalisation :

Budget :

Mission :



Cuisine ouverte / fermée

Descriptif :



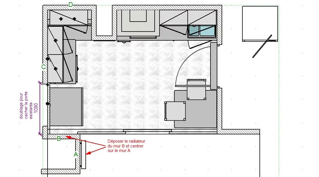
Dans ce projet les clients souhaitaient conserver la cuisine existante (côté cuisson et évier) mais l'espace n'était pas bien optimisé.
La solution :
1) Condamner la porte et utiliser tout ce mur pour agrandir la pièce et ainsi créer des rangements et un plan de travail supplémentaire.
2) Fermer cette pièce avec des portes coulissantes qui permettent de jongler entre espace ouvert et fermé.

Contactez-moi

+33 (0)6 02 30 24 13
17 Cité Jacques Blumenthal 78160 Marly-le-Roi

Les champs marqués d'un * sont obligatoires