+33 (0)6 02 30 24 13
ok@dekointerieur.com
Présentation
Pourquoi faire appel à un/e architecte d’intérieur ?
Comment se déroule le chantier ?
Trouver un architecte d’intérieur en Ile-de-France
Réalisations
Total
Partiel
Etude
Contact
Réalisations
Maison (NANTERRE)
Sommaire
Perspectives
1/7
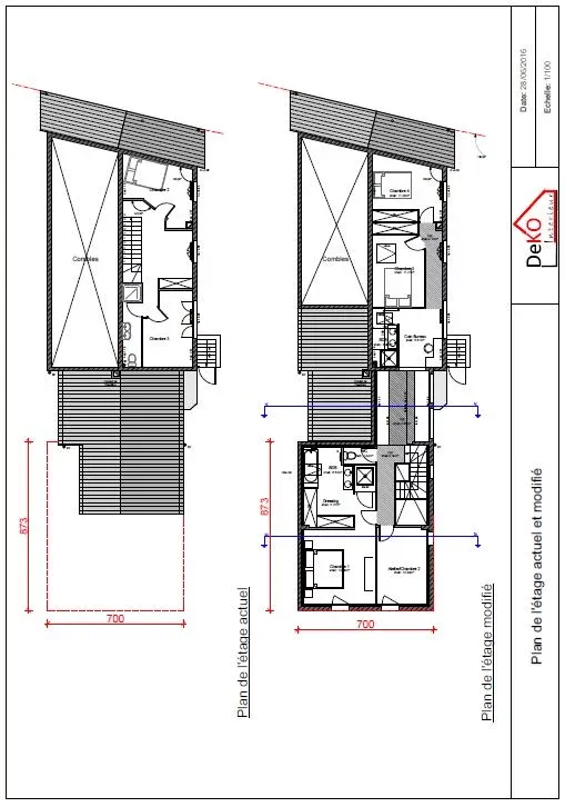
Plan étage
2/7
Plan RDC
3/7
Façades actuelles
4/7
Plan en coupe
5/7
Plan de situation et plan de masse
6/7
Photo maison existante
7/7
Surface :
Temps de réalisation :
Budget :
Descriptif :
Agrandissement pour créer 2 habitations
Contactez-moi
+33 (0)6 02 30 24 13
ok@dekointerieur.com
17 Cité Jacques Blumenthal 78160 Marly-le-Roi
Instagram
LinkedIn
Facebook
J'accepte la politique de confidentialité*
Les champs marqués d'un * sont obligatoires