+33 (0)6 02 30 24 13
ok@dekointerieur.com
Présentation
Pourquoi faire appel à un/e architecte d’intérieur ?
Comment se déroule le chantier ?
Trouver un architecte d’intérieur en Ile-de-France
Réalisations
Total
Partiel
Etude
Contact
Réalisations
Neuilly sur Seine
Sommaire
Cuisine
1/10
Cuisine
2/10
Cuisine
3/10
Cuisine
4/10
Cuisine vue du salon
5/10
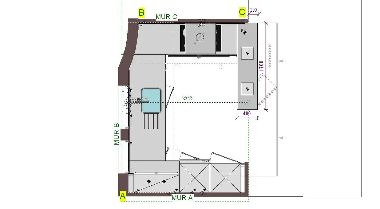
Plan du projet
6/10
En cours de transformation
7/10
En cours de transformation
8/10
Perspective vue de l'entrée
9/10
Perspective
10/10
Surface :
Temps de réalisation :
Budget :
Descriptif :
Réalisation d'une cuisine ouverte et conviviale
Contactez-moi
+33 (0)6 02 30 24 13
ok@dekointerieur.com
17 Cité Jacques Blumenthal 78160 Marly-le-Roi
Instagram
LinkedIn
Facebook
J'accepte la politique de confidentialité*
Les champs marqués d'un * sont obligatoires