+33 (0)6 02 30 24 13
ok@dekointerieur.com
Présentation
Pourquoi faire appel à un/e architecte d’intérieur ?
Comment se déroule le chantier ?
Trouver un architecte d’intérieur en Ile-de-France
Réalisations
Total
Partiel
Etude
Contact
Réalisations
Neuilly sur Seine
Sommaire
Réalisation
Cuisine en laque blanche et plan de travail en céramique. Vue de l'espace repas.
1/17
Côté cuisson et évier
2/17
Réalisation
Mur d'armoires, frigo US et fours
3/17
Vue intérieur
4/17
Buanderie
Portes coulissantes en verre sablé
5/17
Buanderie
6/17
Plan buanderie
7/17
Elévation armoires
8/17
Elévation côté évier
9/17
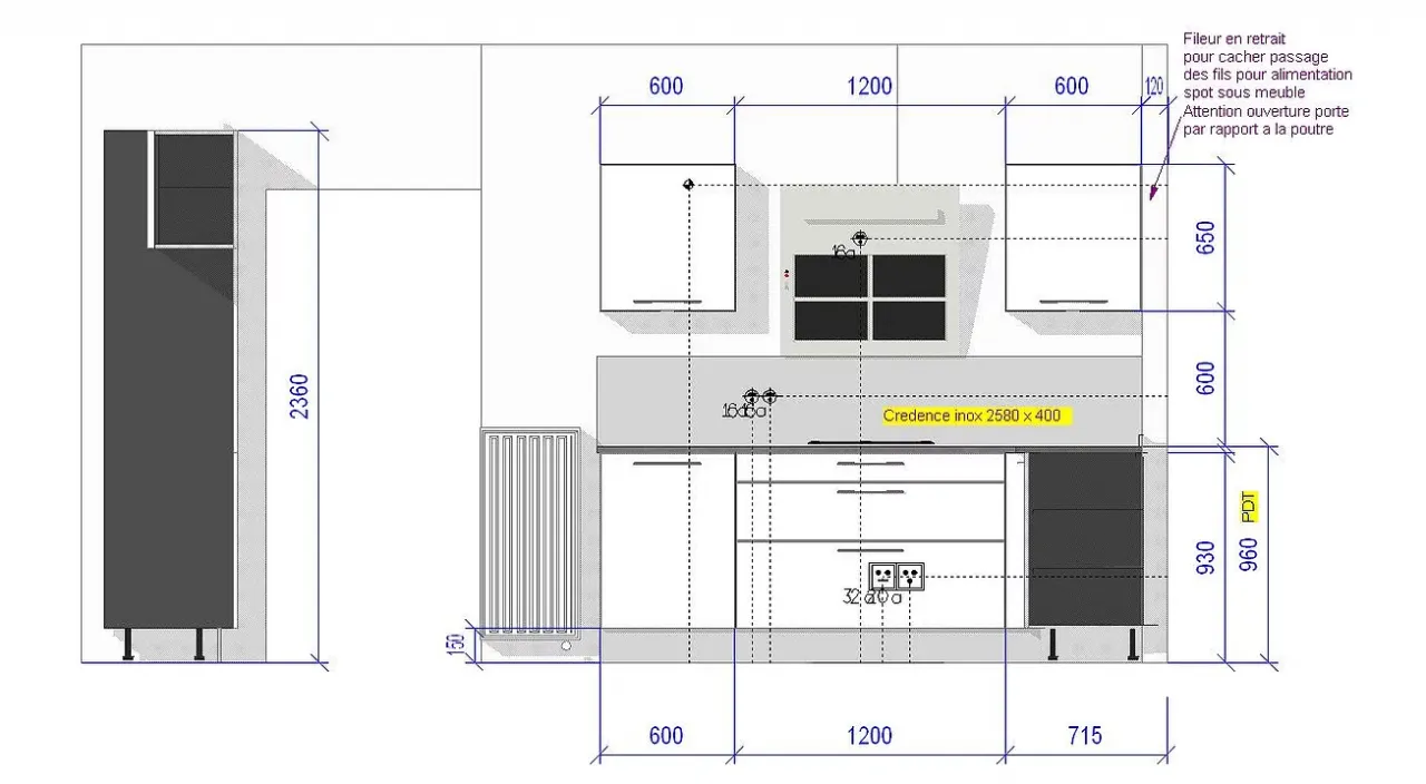
Elévation côté cuisson
10/17
Elévation côté plan/table
11/17
Elévation meubles sous coin table
12/17
Dressing chambre 2 (fermé)
13/17
Dressing chambre 2 (ouvert)
14/17
Dressing chambre 1 (fermé)
15/17
Dressing chambre 1 (ouvert)
16/17
Dressing chambre principale
17/17
Surface :
Temps de réalisation :
Budget :
Descriptif :
Cuisine, buanderie et 3 dressings
Contactez-moi
+33 (0)6 02 30 24 13
ok@dekointerieur.com
17 Cité Jacques Blumenthal 78160 Marly-le-Roi
Instagram
LinkedIn
Facebook
J'accepte la politique de confidentialité*
Les champs marqués d'un * sont obligatoires